Llain 68, Tŷ newydd 3 ystafell wely ym Mharc yr Onnen, Tre Ioan, Caerfyrddin
Llain 68, Parc yr Onnen, Heol Llysonnen, Tre Ioan, Caerfyrddin, Sir Gaerfyrddin, SA31 3SD
£91,039.00
- photos
gynnig
Manylion Allweddol
Mae'r cartrefi fforddiadwy hyn, sef tai 3 ystafell wely, wedi'u lleol ar safle Parc yr Onnen yn Nhre Ioan. Mae canol tref Caerfyrddin o fewn cyrraedd hwylus, lle y mae amrywiaeth o gyfleusterau ar gael, sy'n cynnwys siopau manwerthu, sinema, canolfannau meddygol a deintyddol a champfa. Mae cysylltiadau ffyrdd da â Llanelli ac Abertawe, felly mae'r lleoliad yn ddelfrydol.
Rhaid i chi fod wedi'ch cofrestru gyda ni a'ch bod yn bodloni ein meini prawf cymhwysedd er mwyn gallu prynu'r eiddo hwn.
Disgwylir i'r tŷ gael ei gwblhau rhwng tua mis Tachwedd 2020 & Chwefrof 2021, ac mae ar gael i brynwr cymwys. Enwebir prynwyr ar gyfer y tŷ hwn o 16 Medi 2020 ymlaen.
Y pris fforddiadwy ar gyfer yr eiddo hwn yw £91,039 gwerth yr eiddo ar y farchnad agored yw £149,995 felly byddech yn prynu 60.69% o'r eiddo hwn.
Bydd Cyngor Sir Caerfyrddin yn cadw gweddill yr ecwiti fel ail-brydiant, ar ôl y morgais, i sicrhau bod yr eiddo yn parhau'n fforddiadwy yn y dyfodol.
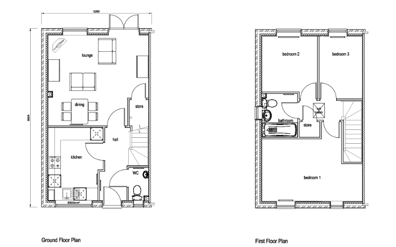
- Llawr gwaelod: Cegin, ystafell fwyta ac ystafell fyw cynllun agored, toiled lawr stâr
- Llawr cyntaf: Tri ystafell wely ac ystafell ymolchi i'r teulu
- Allanol: Gardd gefn a lle parcio
Mae'r eiddo wedi'i gysylltu â chyflenwad dŵr, system ddraenio, trydan a gwres canolog nwy.
Bydd Tystysgrif Perfformiad Ynni (EPC) y cartref hwn ar gael gan y datblygwr.
I gael rhagor o wybodaeth am y datblygiad hwn, cysylltwch â'r datblygwr Persimmon drwy ffonio 01792 229800. Yr amserau agor yw Dydd Llun - Dydd Sul*: 11am - 6pm. *Ar gau bob Dydd Mawrth a Dydd Mercher.
Enghraifft yn unig yw'r lluniau hyn, mae'n bosibl y bydd y tŷ rhywfaint yn wahanol i'r lluniau.
Bwriedir i’r manylion hyn roi disgrifiad teg o’r eiddo, ond canllaw ydynt yn unig. Ni ellir gwarantu eu cywirdeb a dylech chi fodloni eich hun, drwy eu harchwilio neu fel arall, eu bod yn gywir.




