Llain 38,Llanelli
Llain 38, Brynmefys, Ffwrnes, Llanelli
- photos
Manylion Allweddol
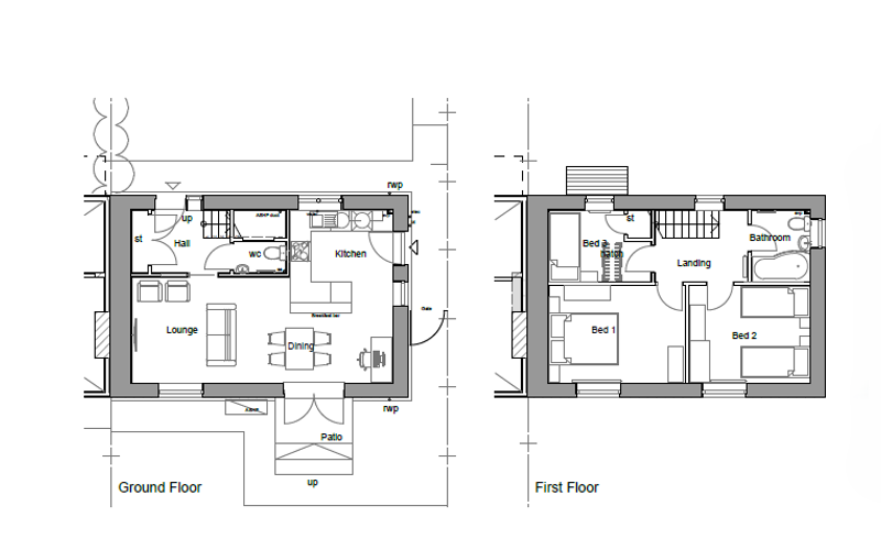
Mae hwn yn gartref fforddiadwy newydd sy'n dŷ pâr tair ystafell wely o ansawdd uchel ac sy’n ynni-effeithlon (gradd EPC A) ym Mrynmefys, Ffwrnes, Llanelli - Mae hwn yn gartref fforddiadwy sydd ar gael i ymgeiswyr cymwys yn unig.
Mae'r cartref newydd hwn mewn lleoliad perffaith ar gyrion Tref Llanelli, o fewn cyrraedd hawdd i gyfleusterau cyffrous fel siopau manwerthu, sinema, campfeydd a lleoliadau adloniant eraill. Mae canolfannau deintyddol a meddygol gerllaw yn ogystal ag ysgolion cynradd ac uwchradd.
Mae cysylltiadau ffordd gwych yn darparu mynediad i'r M4. Mae traethau euraidd Pen-bre a Phorth Tywyn o fewn cyrraedd hawdd ac mae cae ras Ffos Las sydd wedi ennill llu o wobrau hefyd gerllaw. Mae Llanelli, Abertawe a Chaerfyrddin oll o fewn pellter teithio hawdd, ac felly mae'r lleoliad hwn yn un delfrydol.
Rhydd-ddeiliaeth yw'r cartref fforddiadwy 3 ystafell wely hwn
Os oes gennych ddiddordeb mewn prynu'r cartref hwn, mae'n rhaid eich bod wedi cofrestru i brynu cartref fforddiadwy gyda Chyngor Sir Caerfyrddin (gweler ein gwefan am fanylion) ac fe'ch anogir i drefnu gweld yr eiddo hwn pan fydd yn barod.
Bydd enwebiadau am brynwyr ar gyfer y cartref hwn yn cael eu gwneud o nawr tan 19 Rhagfyr, 2025.
I gael gwybodaeth am y cynllun, ewch i’r tudalennau Cymorth i Brynu Tŷ.
Ymwadiad: Mae'r holl ddelweddau a ddefnyddir at ddibenion darluniadol yn unig gyda’r nod o gyfleu'r cysyniad a'r weledigaeth ar gyfer y datblygiad. Canllaw ydynt yn unig, a gallent newid wrth i'r gwaith fynd rhagddo ac nid ydynt o reidrwydd yn cynrychioli darlun gwir a chywir o'r cynnyrch gorffenedig a gall y fanyleb amrywio. Nid yw’n fwriad i’r holl ddelweddau a dimensiynau fod yn rhan o unrhyw gontract neu warant.
Bwriedir i’r manylion hyn roi disgrifiad teg o’r eiddo, ond canllaw ydynt yn unig. Ni ellir gwarantu eu cywirdeb a dylech chi fodloni eich hun, drwy eu harchwilio neu fel arall, eu bod yn gywir.





