Amrywiaeth o unedau busnes ar gael yn Yr Hen Farchnad, Llandeilo
Stryd Caerfyrddin,
Llandeilo,
SA19 6AP
- 01267 246246
- ystadau@sirgar.llyw.cymru
- lluniau
Manylion Allweddol
Disgrifiad
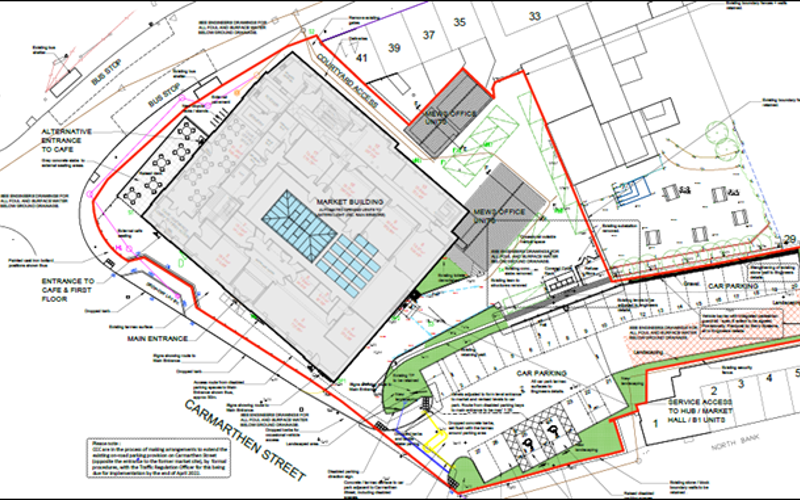
Mae adnewyddu Neuadd Farchnad Llandeilo, restredig Gradd II, yn dod â’r adeilad yn ôl i ddefnydd economaidd, trwy ddarparu gofod cyflogaeth o ansawdd uchel. Bydd yr adeilad yn cynnig tri llawr o ofod defnydd cymysg, a'r prif ddefnydd fydd swyddfeydd a gofod ar gyfer busnes, a'r defnyddiau eraill fydd manwerthu a'r Caffi.
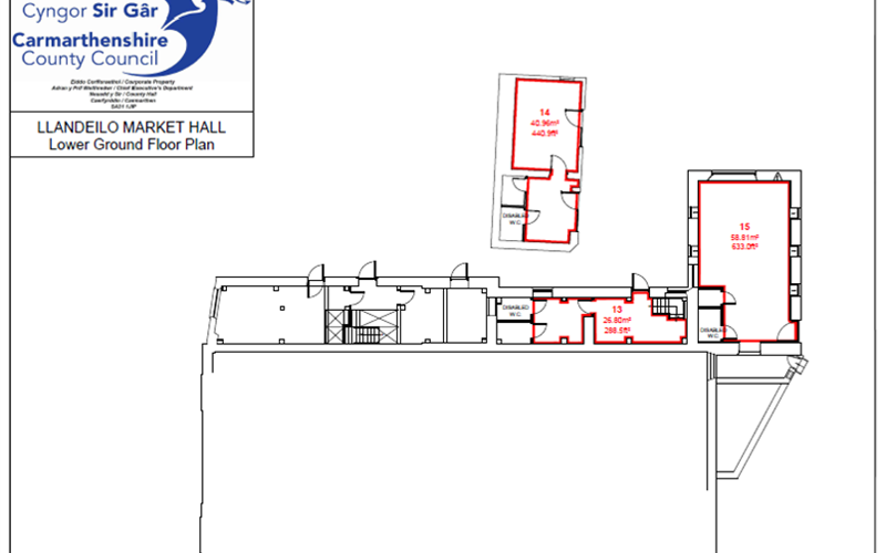
Mae’r swyddfeydd wedi’u lleoli ym mhob rhan o’r adeilad ar y Llawr Gwaelod, y Llawr Gwaelod Is a’r Llawr Uchaf/To. Mae’r unedau manwerthu wedi eu lleoli ar hyd ffryntiad Stryd Caerfyrddin, a’r Caffi ar hyd ffryntiad y Ffordd Newydd. Bydd hefyd neuadd farchnad/digwyddiadau yng nghanol yr adeilad, gyda'r gofod wedi'i leoli'n gyfleus i'r Caffi. Bydd Canolfan Dechnoleg/Desg Boeth, ystafell gyfarfod, ac ardal digwyddiadau allanol. Mae lleoedd parcio i staff ar gael yn y maes parcio newydd ger yr adeilad. Bydd gan y swyddfeydd ar y Llawr Uchaf fynediad a defnydd teras to.
Lleoliad
Wedi’i lleoli yng nghanol Llandeilo, mae neuadd y farchnad yn adeilad rhestredig Gradd II a godwyd yn y 1830au. Mae Llandeilo yn dref hanesyddol yn Sir Gaerfyrddin sydd hanner ffordd rhwng Caerfyrddin a Llanymddyfri, wedi'i lleoli ar groesfan Afon Tywi ger yr A483 ar bont garreg o'r 19eg ganrif.
Golygfeydd
Os hoffech wneud apwyntiad i weld yr eiddo, rhowch eich manylion cyswllt a'ch defnydd arfaethedig i ni, a byddwn yn cysylltu â chi unwaith y bydd y cyfnod adeiladu yn caniatáu ar gyfer golygfeydd cyhoeddus.
I gael rhagor o wybodaeth, manylion a ffurflenni cais, e-bostiwch: ystadau@sirgar.llyw.cymru






