Mae 2 dŷ pâr tair ystafell wely ar werth yn Heol Cae Pownd
94 a 96 Heol Cae Pownd, Cefneithin, Cross Hands, Sir Gaerfyrddin, SA14 7BX
£160,000.00
- photos
gynnig
Manylion Allweddol
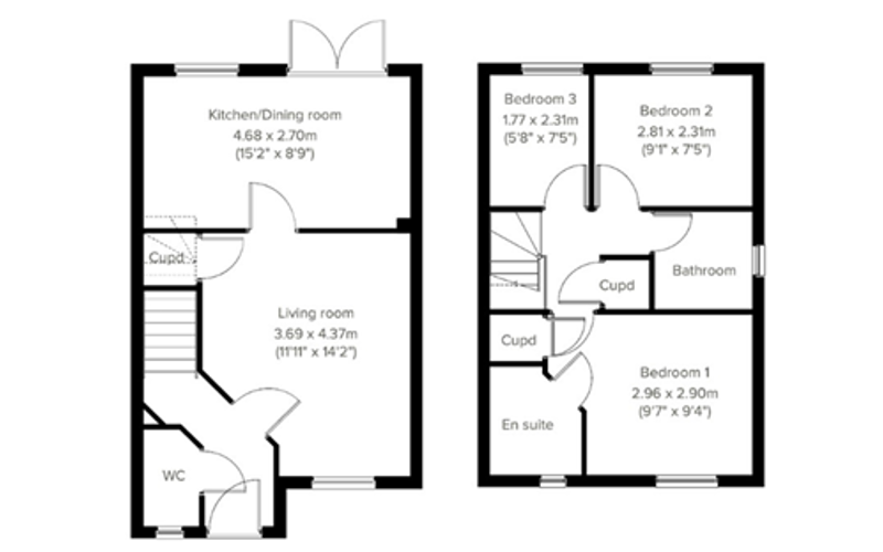
Mae'r ddau dŷ fforddiadwy yn dai pâr tair ystafell wely wedi'u lleoli yn Heol Cae Pownd ym mhentref Cefneithin. Mae'r datblygiad hwn yn agos at Cross Hands lle y mae amrywiaeth o gyfleusterau ar gael, gan gynnwys siopau manwerthu, sinema, ysgol, campfa a chanolfannau meddygol a deintyddol. Mae gan y tŷ gysylltiadau ffyrdd gwych â Llanelli, Abertawe a Chaerfyrddin, felly mae'r lleoliad yn ddelfrydol. Mae gan yr eiddo fan parcio preifat ar gyfer dau gerbyd yn ogystal â gardd gefn.
Disgwylir i'r tŷ gael ei gwblhau tua mis Rhagfyr 2023, ac mae'r tŷ newydd hwn ar gael i brynwr cymwys. I weld a allech fod yn gymwys i brynu'r tŷ hwn, gweler ein meini prawf cymhwysedd.
Rhaid i chi fod wedi'ch cofrestru gyda Chyngor Sir Caerfyrddin a'ch bod yn bodloni ein meini prawf cymhwysedd er mwyn i ni allu eich cyflwyno i'r perchennog er mwyn iddo gytuno i werthu'r eiddo i chi.
Enwebir prynwyr ar gyfer y tŷ hwn ar ôl 22 Hydref 2023.
Os hoffech gael rhagor o wybodaeth am yr eiddo hwn neu i drefnu i weld yr eiddo hwn, ffoniwch Susan Howells, Persimmon, 07593 441 760, neu anfonwch neges e-bost at parccerrig.wwal@persimmonhomes.com.
Bwriedir i’r manylion hyn roi disgrifiad teg o’r eiddo, ond canllaw ydynt yn unig. Ni ellir gwarantu eu cywirdeb a dylech chi fodloni eich hun, drwy eu harchwilio neu fel arall, eu bod yn gywir.








